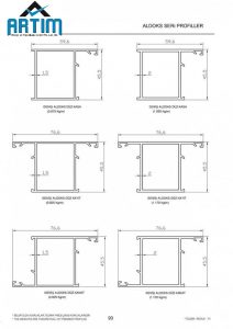
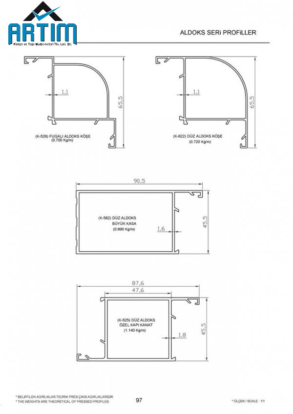
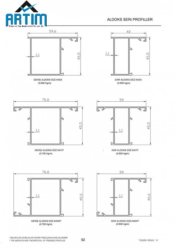
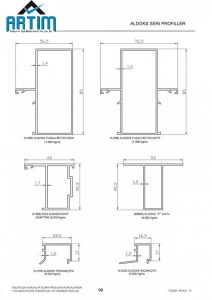
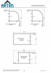
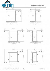
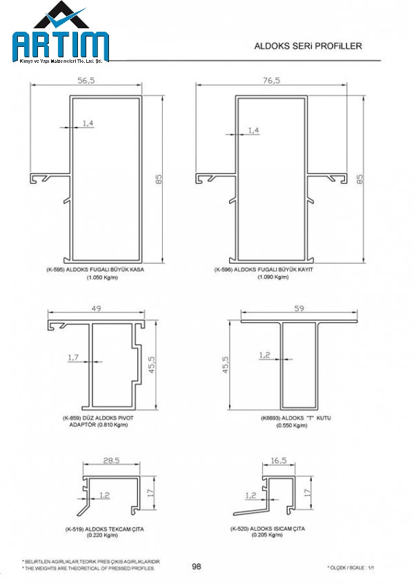
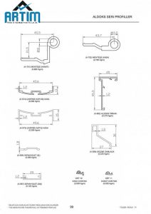
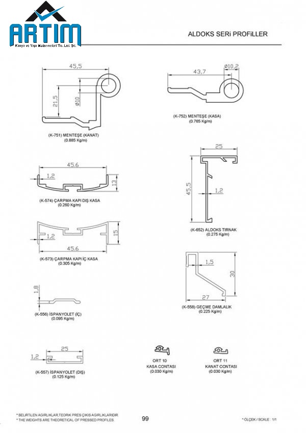
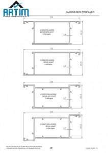
Aldoks Serisi